1 din 4 expand icon
De vânzare
Bucuresti / Bucuresti
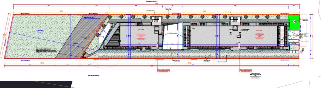
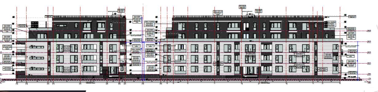
Posibilitate de invetitie | Teren cu Autorizatie | P+2+3R+4R
2.000.000 €

Specificații principale:

Suprafață teren: 2.930 mp

Regim de înălțime autorizat: două corpuri, unul cu P+2+3, celălalt cu P+4R

Coeficienți urbanistici: CUT 2,49 | POT 50,5%

Deschidere la lac – priveliște directă către Lacul Grivița, cu potențial de integrare a spațiilor de agrement și promenadă

Teren intabulat, liber de sarcini, pregătit pentru dezvoltare imediată

Avantajele zonei – Șişeşti :

Localizare premium – parte a cartierului Vatra Nouă, zonă în plină dezvoltare imobiliară, cu ansambluri moderne și infrastructură nouă precum Green Lake, Citadela, Nordia Residence ș.a.
Conectivitate excelentă – acces rapid la metrou Străulești, transport în comun și legături directe către DN1, centura București și Mall Băneasa.
Cadru natural deosebit – amplasament cu deschidere la Lacul Grivița, oferind un plus de valoare și atractivitate pentru viitorul proiect.
Facilități complete în proximitate – supermarketuri, școli, grădinițe, centre medicale, restaurante și spații de recreere.
Calitate urbană ridicată – zonă sigură, curată, cu infrastructură în dezvoltare și perspective excelente de creștere a valorii.

Acest teren reprezintă o oportunitate unică de investiție pentru dezvoltatori care își doresc să creeze un proiect rezidențial modern, cu priveliște la lac și acces rapid la principalele puncte de interes ale Bucureștiului.

  • Nr. fronturi: 1
Alte detalii despre zonă:
Sisesti - Bucuresti
Detalii Preț:
2,000,000 €
Anunț publicat de
GOLDEN BUZZ

Află mai multe despre această proprietate.

0731199766

ALTE PROPRIETĂȚI