1 din 7 expand icon
De vânzare
Bucuresti / Bucuresti
Teren 2553 mp | Iancu Nicolae | Serban Cantacuzino |
1.355.000 €

Golden Buzz Investments va propune spre achizitie unul dintre cele mai bine pozitionate terenuri din zona Iancu Nicolae - Gradina Zoo, cu o deschidere de 26 mp.
Pozitionat intr-una dintre cele mai frumoase zone ale Capitalei, terenul are toate atuurile pentru dezvoltarea unui proiect imobiliar rezidential de referinta.

Terenul dispune de toate utilitatile, acces facil, iar in proximitate se regasesc cele mai bune scoli si gradinite din Bucuresti, terase, restaurante, cluburi, sali de fitness, etc.

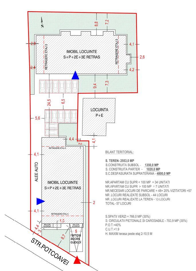
Suprafata teren – 2553 mp
POT – 45 %
RHmax – P+2+3R
CUTmax – 2,2
Utilitati – apa, canal, gaze, curent.

Pretul este de 1.355.000 EUR

In proximitate se afla:
Jolie Ville
Ambasada SUA
Padurea Baneasa
Gradina Zoologica
Mall Baneasa Shoping City

  • Nr. fronturi: 1
Alte detalii despre zonă:
Iancu Nicolae - Bucuresti
Detalii Preț:
1,355,000 €
Anunț publicat de
GOLDEN BUZZ

Află mai multe despre această proprietate.

0731199766

ALTE PROPRIETĂȚI